オリエンタルプラザ2階7号
ギャラリー









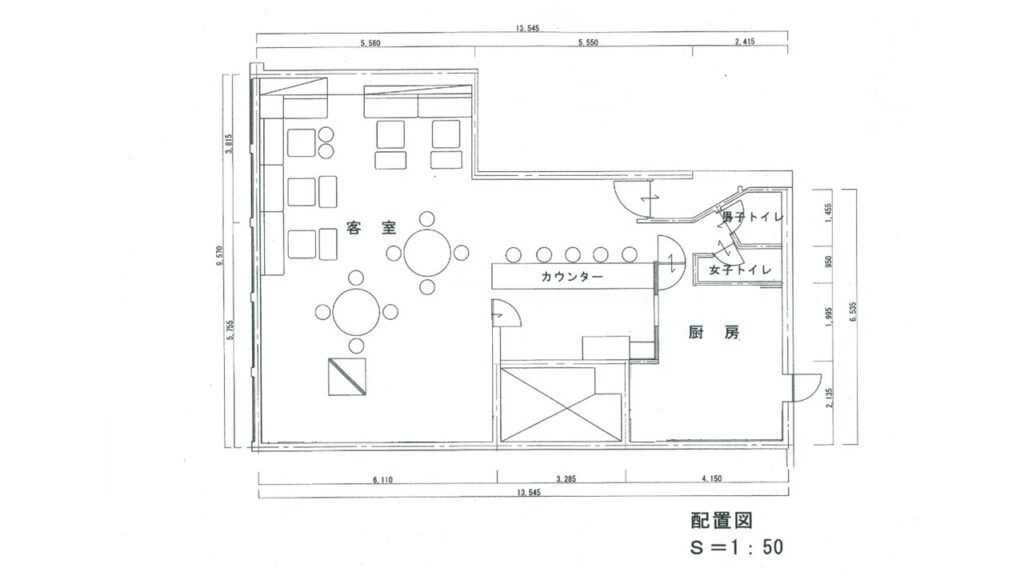
店舗概要
店舗NO | 2階7号 |
契約面積 | 41.6席 |
カウンター | 5席 |
ボックス | 48席 |
設備概要
エアコン | あり |
トイレ | 男女別あり |
冷蔵庫 | なし |
電子レンジ | なし |
製氷機 | なし |
おしぼりウォーマー | なし |
ガスコンロ | なし |
クローゼット | なし |
ご賃貸条件
賃貸料 | 291,200円 |
共益費 | 104,000円 |
店舗リース料 | 0円 |
エアコン保守料 | 7,000円 |
月額費用合計 | 402,200円(消費税別) |
水道光熱費 | 個別メーター検針により毎月ご請求 |
初期費用
権利金 | 395,200円 |
看板製作費 | 70,000円 |
店舗内消火器・指定ごみ箱 | 20,000円 |
小計 | 485,200円(消費税別) |
敷金 | 1,185,600円(非課税) |
合計 | 1,670,800円 |
備考
昼の残光がガラス越しに差し込むころ、黒いレザーのソファが静かにその光を受け止める。
やがて夜が訪れ、照明がともると、ここはもう別の世界だ。
語り合う声と笑い声が混ざり合い、氷の音がグラスの底で鳴る。
カウンターの奥ではバーテンダーの手が絶えず動き、並ぶボトルたちは今日の気分を映す鏡のように揺れている。
壁のレンガ調は街の温度をほんの少しだけ和らげ、窓の外のネオンがその隙間を縫うように忍び込んでくる。
ダーツが放たれる乾いた音。
それを合図に、誰かの心の距離がひとつ縮まる。
60名を超える人が集える広い空間でありながら、なぜだろう、ここには不思議と“安心”がある。
厨房の奥では、静かに湯気が立ちのぼる。
手をかけた一皿と一杯の酒が、この場所の時間をゆっくりと進めていく。
扉の向こうには、まだ見ぬ夜が待っている。
そんな光景が目に浮かぶ、パブ向きの店舗です。
※改装費用はお客様のご負担となります(その分お家賃はお安くなっています)。
※お家賃についてはご相談に応じますのでお気軽にお問い合わせくださいませ。
※厨房画像に写っている各種設備は前入居者の私物になるため、厨房設備については借主様にてご準備下さい。